| 価格 | 2,480万円値下がり ![]() |
||||
|---|---|---|---|---|---|
| 所在地 | 埼玉県狭山市富士見2丁目
この地域周辺の物件を見る |
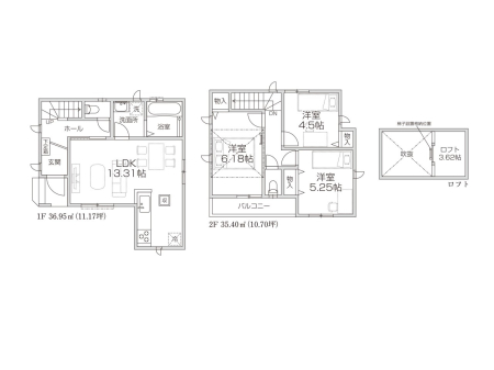
土地面積 | 50.07m² (15.15坪) | 建物面積 | 84.44u |
| 築年月 | 2025年6月築 | 間取り | 3LDK (-) | ||
| 交通 |
西武新宿線 入曽 徒歩20分
西武新宿線 狭山市 徒歩18分 |
||||
電話をかける(携帯・PHS可)
042-497-5777
「ホームページを見た」とお伝え下さい。
お問い合わせ番号をお伝えください
RHS-990929823
| 特徴 |
|
|---|---|
| セールスコメント | 建ぺい率:角地緩和 建物面積:1階車庫面積約9.93平米含 私道負担割合:14/143 |
| 採光面 | - | 構造/階数 | 木造/地上3階建 |
|---|---|---|---|
| 建ぺい率 | 70(%) | 容積率 | 200(%) |
| 駐車場 | 有 | 現況/引渡し | 空家/即時 |
| 土地権利 | 所有権 | 私道負担面積 | あり 143m² |
| 接道状況 | 接道: 東 公道 道路幅: 4.5m 接道: 南 私道 道路幅: 4m |
用途地域 |
準工業地域
|
| セットバック | なし | 法令上の制限 | - |
| 地目 | 宅地 | 地勢 | |
| 建築確認番号 | 第SJK-KX245515230号 | 都市計画 | 市街化区域 |
| 取引態様 | 仲介 | ||
| 情報更新日 | 2026年02月14日 | 次回更新日 | 2026年02月28日 |
| 小学校区 | () |
中学校区 | () |
|---|
電話をかける(携帯・PHS可)
042-497-5777
「ホームページを見た」とお伝え下さい。
お問い合わせ番号をお伝えください
RHS-990929823
| 価格 | 万円 | ||
|---|---|---|---|
| 年利率 | % |
||
| ボーナス払い | 返済年数 | ||
| 頭金 | 直接入力する | 万円 | |

毎月のご返済額 |
ボーナス(×年2回) |
物件価格2,480万円 |
電話をかける(携帯・PHS可)
042-497-5777
「ホームページを見た」とお伝え下さい。
お問い合わせ番号をお伝えください
RHS-990929823
FP相談キャッシュフローの作成無料でできます