| 価格 | 4,380万円 ![]() |
||||
|---|---|---|---|---|---|
| 所在地 | 埼玉県さいたま市南区太田窪5丁目
この地域周辺の物件を見る |
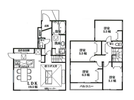
土地面積 | 64.85m² (19.62坪) | 建物面積 | 101.65u |
| 築年月 | 2026年5月築 | 間取り | 2SLDK (-) | ||
| 交通 |
JR京浜東北・根岸線 浦和 細野 バス10分 停歩4分
JR京浜東北・根岸線 南浦和 徒歩17分 |
||||
電話をかける(携帯・PHS可)
042-497-5777
「ホームページを見た」とお伝え下さい。
お問い合わせ番号をお伝えください
RHS-990985671
| 特徴 |
|
|---|---|
| セールスコメント | 法第22条区域 宅地造成等工事規制区域 高度地区:20m 景観法 容積率:前面道路幅員制限 建物面積:1階車庫面積約9.74平米含 |
| 採光面 | - | 構造/階数 | 木造/地上3階建 |
|---|---|---|---|
| 建ぺい率 | 60(%) | 容積率 | 160(%) |
| 駐車場 | 有 | 現況/引渡し | -/2026年6月上旬 |
| 土地権利 | 所有権 | 私道負担面積 | - |
| 接道状況 | 接道: 南 公道 道路幅: 4m | 用途地域 |
第二種中高層住居専用地域
|
| セットバック | なし | 法令上の制限 | - |
| 地目 | 宅地 | 地勢 | |
| 建築確認番号 | 第25UDI1W建03308-2号 | 都市計画 | 市街化区域 |
| 取引態様 | 仲介 | ||
| 情報更新日 | 2025年12月15日 | 次回更新日 | 2025年12月29日 |
| 小学校区 | () |
中学校区 | () |
|---|
電話をかける(携帯・PHS可)
042-497-5777
「ホームページを見た」とお伝え下さい。
お問い合わせ番号をお伝えください
RHS-990985671
| 価格 | 万円 | ||
|---|---|---|---|
| 年利率 | % |
||
| ボーナス払い | 返済年数 | ||
| 頭金 | 直接入力する | 万円 | |

毎月のご返済額 |
ボーナス(×年2回) |
物件価格4,380万円 |
![]() |
![]() |
さいたま市南区太田窪5丁目
4380万円〜4480万円 |
電話をかける(携帯・PHS可)
042-497-5777
「ホームページを見た」とお伝え下さい。
お問い合わせ番号をお伝えください
RHS-990985671
FP相談キャッシュフローの作成無料でできます