| 価格 | 6,290万円 ![]() |
||||
|---|---|---|---|---|---|
| 所在地 | 東京都足立区青井2丁目
この地域周辺の物件を見る |
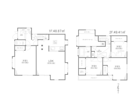
土地面積 | 67.41m² (20.39坪) | 建物面積 | 115.4u |
| 築年月 | 2026年4月築 | 間取り | 3SLDK (-) | ||
| 交通 |
つくばエクスプレス 青井 徒歩10分
東武伊勢崎線 五反野 徒歩12分 |
||||
電話をかける(携帯・PHS可)
042-497-5777
「ホームページを見た」とお伝え下さい。
お問い合わせ番号をお伝えください
RHS-990993079
| 特徴 |
|
|---|---|
| セールスコメント | 景観法 準防火地域 第2種高度地区 日影規制有(4h-2.5h/4m) 宅地造成等工事規制区域 建ぺい率:角地緩和、法第53条3項1号ロによる緩和 建物面積:1階車庫面積約12.42平米含 |
| 採光面 | - | 構造/階数 | 木造/地上3階建 |
|---|---|---|---|
| 建ぺい率 | 80(%) | 容積率 | 200(%) |
| 駐車場 | 有 | 現況/引渡し | -/2026年5月上旬 |
| 土地権利 | 所有権 | 私道負担面積 | - |
| 接道状況 | 接道: 西 公道 道路幅: 10.3m 接道: 南 公道 道路幅: 5.4m |
用途地域 |
第一種住居地域
|
| セットバック | なし | 法令上の制限 | - |
| 地目 | 宅地 | 地勢 | |
| 建築確認番号 | 第HPA-25-13604-1号 | 都市計画 | 市街化区域 |
| 取引態様 | 仲介 | ||
| 情報更新日 | 2026年01月13日 | 次回更新日 | 2026年01月27日 |
| 小学校区 | () |
中学校区 | () |
|---|
電話をかける(携帯・PHS可)
042-497-5777
「ホームページを見た」とお伝え下さい。
お問い合わせ番号をお伝えください
RHS-990993079
| 価格 | 万円 | ||
|---|---|---|---|
| 年利率 | % |
||
| ボーナス払い | 返済年数 | ||
| 頭金 | 直接入力する | 万円 | |

毎月のご返済額 |
ボーナス(×年2回) |
物件価格6,290万円 |
![]() |
![]() |
足立区青井2丁目
5990万円〜6290万円 |
電話をかける(携帯・PHS可)
042-497-5777
「ホームページを見た」とお伝え下さい。
お問い合わせ番号をお伝えください
RHS-990993079
FP相談キャッシュフローの作成無料でできます