| 価格 | 16,500万円 ![]() |
||||
|---|---|---|---|---|---|
| 所在地 | 東京都中央区勝どき1丁目
この地域周辺の物件を見る |
専有面積 | 54.68u | 築年月 | 2010年11月築 |
| 交通 |
都営大江戸線 勝どき 徒歩1分
東京メトロ有楽町線 月島 徒歩12分 |
管理費等 | 15,120円 | 修繕積立金 | 19,680円 | 所在階/階数 | 46階/地上53階 地下3階建 | バルコニー面積 | 8.8m² |
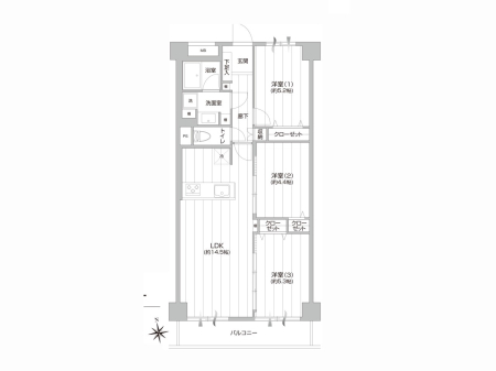
| 間取り | 2LDK (-) | ||||
電話をかける(携帯・PHS可)
042-497-5777
「ホームページを見た」とお伝え下さい。
お問い合わせ番号をお伝えください
RHS-990993249
| 特徴 |
|
|---|---|
| セールスコメント | 洗濯機置き場,長期修繕計画有 事務所利用:不可 用途地域:一部商業地域 構造:一部S造 ペット飼育:不可 |
| 採光面 | 東 | 取引態様 | 仲介 |
|---|---|---|---|
| 現況 | 空家 | 引渡し | 即時 |
| 総戸数 | 746戸 | 構造 | RC造 |
| テラス面積 | - | 専用庭面積 | - |
| 駐車場 | - | 駐輪場 | - |
| 建物権利 | - | 土地権利 | 所有権 |
| 用途地域 | 第二種住居地域 - - | 管理態様 | 管理形態:委託(通勤) 管理組合:あり 管理会社:(株)東急コミュニティー |
| 情報更新日 | 2026年01月13日 | 次回更新日 | 2026年01月27日 |
| 小学校区 | 中央区立月島第二小学校 (東京都中央区) この学区の他の物件を見る |
中学校区 | 晴海中学校 (東京都中央区) この学区の他の物件を見る |
|---|
電話をかける(携帯・PHS可)
042-497-5777
「ホームページを見た」とお伝え下さい。
お問い合わせ番号をお伝えください
RHS-990993249
| 価格 | 万円 | ||
|---|---|---|---|
| 年利率 | % |
||
| ボーナス払い | 返済年数 | ||
| 頭金 | 直接入力する | 万円 | |

毎月のご返済額 |
ボーナス(×年2回) |
物件価格16,500万円 |
電話でお問い合わせ
ME不動産西東京
|
電話をかける 042-497-5777 ※「ホームページを見た」とお伝えください。 |
お問い合わせ番号をお伝えください RHS-990993249 |
|---|
FP相談キャッシュフローの作成無料でできます