| 価格 | 4,990万円値下がり ![]() |
||||
|---|---|---|---|---|---|
| 所在地 | 東京都西東京市北原町3丁目
この地域周辺の物件を見る |
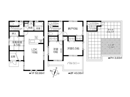
土地面積 | 88.89m² (26.89坪) | 建物面積 | 70.9u |
| 築年月 | 2026年3月築 | 間取り | 3LDK (-) | ||
| 交通 |
西武新宿線 田無 徒歩16分
西武池袋線 ひばりヶ丘 徒歩23分 |
||||
電話をかける(携帯・PHS可)
042-497-5777
「ホームページを見た」とお伝え下さい。
お問い合わせ番号をお伝えください
RHS-991001367
| 特徴 |
|
|---|---|
| セールスコメント | 法第22条区域 第1種高度地区 高さ10m 日影規制:3h-2h/1.5m 宅地造成等工事規制区域 東大生態調和農学機構周辺地区地区計画(住宅市街地地区) |
| 採光面 | - | 構造/階数 | 木造/地上2階建 |
|---|---|---|---|
| 建ぺい率 | 40(%) | 容積率 | 80(%) |
| 駐車場 | 有 | 現況/引渡し | 空家/即時 |
| 土地権利 | 所有権 | 私道負担面積 | あり 7.71m² |
| 接道状況 | 接道: 北 私道 道路幅: 4m | 用途地域 |
第一種低層住居専用地域
|
| セットバック | なし | 法令上の制限 | 22条区域 |
| 地目 | 宅地 | 地勢 | |
| 建築確認番号 | 第HPA-25-11228-1号 | 都市計画 | 市街化区域 |
| 取引態様 | 仲介 | ||
| 情報更新日 | 2026年05月14日 | 次回更新日 | 2026年05月28日 |
| 小学校区 | () |
中学校区 | () |
|---|
電話をかける(携帯・PHS可)
042-497-5777
「ホームページを見た」とお伝え下さい。
お問い合わせ番号をお伝えください
RHS-991001367
| 価格 | 万円 | ||
|---|---|---|---|
| 年利率 | % |
||
| ボーナス払い | 返済年数 | ||
| 頭金 | 直接入力する | 万円 | |

毎月のご返済額 |
ボーナス(×年2回) |
物件価格4,990万円 |
電話をかける(携帯・PHS可)
042-497-5777
「ホームページを見た」とお伝え下さい。
お問い合わせ番号をお伝えください
RHS-991001367
FP相談キャッシュフローの作成無料でできます