| 価格 | 5,680万円 ![]() |
||||
|---|---|---|---|---|---|
| 所在地 | 東京都小平市回田町
この地域周辺の物件を見る |
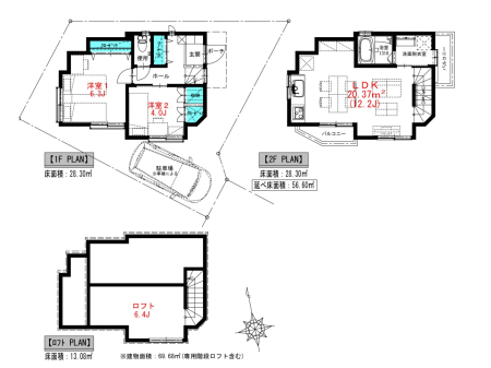
土地面積 | 122.91m² (37.18坪) | 建物面積 | 96.46u |
| 築年月 | 2026年4月築 | 間取り | 4LDK (-) | ||
| 交通 |
西武多摩湖線 一橋学園 徒歩19分
JR中央線 国分寺 鈴木一丁目 バス17分 停歩4分 |
||||
電話をかける(携帯・PHS可)
042-497-5777
「ホームページを見た」とお伝え下さい。
お問い合わせ番号をお伝えください
RHS-991002617
| 特徴 |
|
|---|---|
| セールスコメント | 第1種高度地区 22条区域 私道持分:385平米×6119/77178、11平米×185/2322有 太陽光発電システムは東京ガスが提供するサービス契約(IGNITUREフラットプラン)となります。サービス契約期間:10年間。月額サービス料5400円/月(補助金が適用される場合は月額サービス料:0円-1100円) |
| 採光面 | - | 構造/階数 | 木造/地上2階建 |
|---|---|---|---|
| 建ぺい率 | 40(%) | 容積率 | 80(%) |
| 駐車場 | 有 | 現況/引渡し | -/2026年5月下旬 |
| 土地権利 | 所有権 | 私道負担面積 | - |
| 接道状況 | 接道: 西 私道 道路幅: 5m | 用途地域 |
第一種低層住居専用地域
|
| セットバック | なし | 法令上の制限 | - |
| 地目 | 宅地 | 地勢 | |
| 建築確認番号 | 第R07SHC126082号 | 都市計画 | 市街化区域 |
| 取引態様 | 仲介 | ||
| 情報更新日 | 2026年03月12日 | 次回更新日 | 2026年03月26日 |
| 小学校区 | () |
中学校区 | () |
|---|
電話をかける(携帯・PHS可)
042-497-5777
「ホームページを見た」とお伝え下さい。
お問い合わせ番号をお伝えください
RHS-991002617
| 価格 | 万円 | ||
|---|---|---|---|
| 年利率 | % |
||
| ボーナス払い | 返済年数 | ||
| 頭金 | 直接入力する | 万円 | |

毎月のご返済額 |
ボーナス(×年2回) |
物件価格5,680万円 |
![]() |
![]() |
小平市回田町
5680万円〜5730万円 |
電話をかける(携帯・PHS可)
042-497-5777
「ホームページを見た」とお伝え下さい。
お問い合わせ番号をお伝えください
RHS-991002617
FP相談キャッシュフローの作成無料でできます