| 価格 | 3,380万円 ![]() |
||||
|---|---|---|---|---|---|
| 所在地 | 埼玉県入間市東藤沢8丁目
この地域周辺の物件を見る |
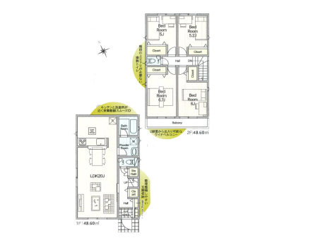
土地面積 | 115.21m² (34.85坪) | 建物面積 | 109.14u |
| 築年月 | 2026年6月築 | 間取り | 4LDK (-) | ||
| 交通 |
西武池袋線 狭山ヶ丘 徒歩16分
西武池袋線 武蔵藤沢 徒歩16分 |
||||
電話をかける(携帯・PHS可)
042-497-5777
「ホームページを見た」とお伝え下さい。
お問い合わせ番号をお伝えください
RHS-991002980
| 特徴 |
|
|---|---|
| セールスコメント | 法第22条区域 宅地造成等工事規制区域 日影規制:4h-2.5h/4m 景観法 容積率:前面道路幅員制限 |
| 採光面 | - | 構造/階数 | 木造/地上2階建 |
|---|---|---|---|
| 建ぺい率 | 60(%) | 容積率 | 160(%) |
| 駐車場 | 有 | 現況/引渡し | -/2026年7月上旬 |
| 土地権利 | 所有権 | 私道負担面積 | - |
| 接道状況 | 接道: 東南 公道 道路幅: 4m | 用途地域 |
第一種中高層住居専用地域
|
| セットバック | なし | 法令上の制限 | - |
| 地目 | 宅地 | 地勢 | |
| 建築確認番号 | 第25UDI1W建10022号 | 都市計画 | 市街化区域 |
| 取引態様 | 仲介 | ||
| 情報更新日 | 2026年03月12日 | 次回更新日 | 2026年03月26日 |
| 小学校区 | () |
中学校区 | () |
|---|
電話をかける(携帯・PHS可)
042-497-5777
「ホームページを見た」とお伝え下さい。
お問い合わせ番号をお伝えください
RHS-991002980
| 価格 | 万円 | ||
|---|---|---|---|
| 年利率 | % |
||
| ボーナス払い | 返済年数 | ||
| 頭金 | 直接入力する | 万円 | |

毎月のご返済額 |
ボーナス(×年2回) |
物件価格3,380万円 |
電話をかける(携帯・PHS可)
042-497-5777
「ホームページを見た」とお伝え下さい。
お問い合わせ番号をお伝えください
RHS-991002980
FP相談キャッシュフローの作成無料でできます