|東京の新築・中古一戸建て、不動産情報ならME不動産西東京にお任せください

年中無休 営業時間:9:00〜18:30 042-497-5777
不動産1分査定
TOPページ >
物件検索 >
不動産情報一覧

の検索結果一覧

種別で絞り込む 新築一戸建て 中古一戸建て 中古マンション 土地
1件中1〜1件を表示
表示件数 並び順
新築一戸建て

FP相談キャッシュフローの作成無料でできます

価格 3,390万円 
所在地 埼玉県川越市かし野台1丁目
交通 西武新宿線 南大塚駅 徒歩20分
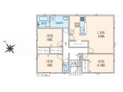
間取り 3LDK
建物面積 85.86u 土地面積 205.81u
築年月 2026年6月 建物構造 一戸建て/木造
14枚  
表示件数 並び順


お客様へ

不動産情報はME不動産西東京にお任せください!ME不動産西東京では不動産情報を豊富にご用意しております。 新築戸建て・土地・マンションをお探しの方はぜひME不動産西東京までお問い合わせください。信頼あるスタッフがあなたのマイホーム探しのお手伝いをさせて頂きます。