練馬区石神井台8丁目 中古戸建|2台分のカースペースを完備し、ファミリー層に嬉しいゆとりある駐車計画が実現 | 東京の新築・中古一戸建て、不動産情報ならME不動産西東京にお任せください
販売中2台分のカースペースを完備し、ファミリー層に嬉しいゆとりある駐車計画が実現
-
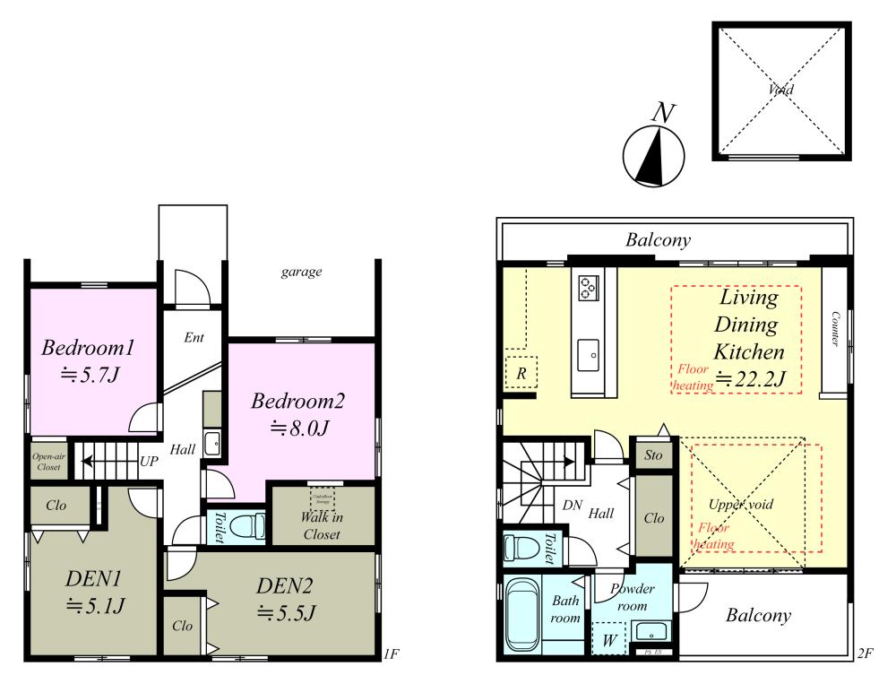
物件名 練馬区石神井台8丁目 中古戸建 種別 中古戸建 価格 7499万円 採光を確保しており、リビングを中心に一日を通して明るい光が差し込む心地よい住空間。キッチンから洗面室への動線が短く、家事効率を高める使い勝手の良い間取りを採用。各居室の収納に加え、季節物の収納や備品整理に便利な“多目的収納”。車通りの少ない落ち着いた住宅街に位置し、買い物施設や生活利便施設が身近に揃う住環境。最寄りの「武蔵境駅」まで徒歩12分と、通勤・通学に便利なアクセス良好の立地。スーパーやコンビニや公園まで徒歩5分以内の立地。床暖房があるので冬もポカポカ
練馬区立石神井台小学校 700m
練馬区立関中学校 600m
いなげや 練馬南大泉店 315m
上石神井幼稚園 184m
関町第三保育園 316m
| 種別 | 中古戸建 | 間取り | 4LDK |
|---|---|---|---|
| 交通 | 西武新宿線「武蔵関」駅 徒歩12分 | 価格 | 7499万円 |
| 所在地 | 東京都練馬区石神井台8丁目 | 築年月 | 2024年11月 |
| 土地面積/私道負担面積 | 113.52㎡ | 延床面積 | 105.05㎡ |
| 所在階/階数 | バルコニー面積 | ||
| 管理費及び修繕積立金 | 管理方式 | ||
| 地目 | 宅地 | 土地権利 | 所有権 |
| 接道状況 | 北側公道4m | 構造 | 木造2階建て |
| 建蔽率 | 50% | 容積率 | 100% |
| 建築確認番号 | 取引態様 | 専任媒介 | |
| その他備考 | |||
更新日・次回更新予定日:2025/12/6(次回更新予定日2025/12/20)
西武新宿線「武蔵関」駅 徒歩12分



























