| 価格 | 2,199万円 ![]() |
||||
|---|---|---|---|---|---|
| 所在地 | 東京都武蔵村山市岸3丁目
この地域周辺の物件を見る |
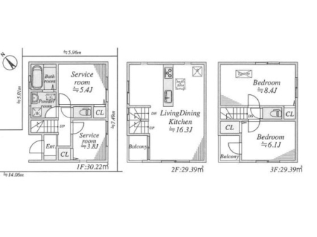
土地面積 | 109.94m² (33.26坪) | 建物面積 | 71.88u |
| 築年月 | 1993年5月築 | 間取り | 3LDK (-) | ||
| 交通 |
JR八高線 新道 バス6分 停歩6分
西武拝島線 西武立川 徒歩63分 |
||||
電話をかける(携帯・PHS可)
042-497-5777
「ホームページを見た」とお伝え下さい。
お問い合わせ番号をお伝えください
RHS-990976695
| 特徴 |
|
|---|---|
| セールスコメント | 建築基準法第22条区域 第1種高度地区 |
| 採光面 | - | 構造/階数 | 木造/地上2階建 |
|---|---|---|---|
| 建ぺい率 | 50(%) | 容積率 | 80(%) |
| 駐車場 | 有 | 現況/引渡し | 空家/相談 |
| 土地権利 | 所有権 | 私道負担面積 | - |
| 接道状況 | 接道: 北 公道 道路幅: 6m 接道: 西 公道 道路幅: 6m |
用途地域 |
第一種低層住居専用地域
|
| セットバック | なし | 法令上の制限 | - |
| 地目 | 宅地 | 地勢 | 平坦 |
| 建築確認番号 | 都市計画 | 市街化区域 | |
| 取引態様 | 仲介 | ||
| 情報更新日 | 2026年02月07日 | 次回更新日 | 2026年02月21日 |
| 小学校区 | 武蔵村山市立第二小学校 (東京都武蔵村山市) この学区の他の物件を見る |
中学校区 | 第五中学校 (東京都武蔵村山市) この学区の他の物件を見る |
|---|
電話をかける(携帯・PHS可)
042-497-5777
「ホームページを見た」とお伝え下さい。
お問い合わせ番号をお伝えください
RHS-990976695
| 価格 | 万円 | ||
|---|---|---|---|
| 年利率 | % |
||
| ボーナス払い | 返済年数 | ||
| 頭金 | 直接入力する | 万円 | |

毎月のご返済額 |
ボーナス(×年2回) |
物件価格2,199万円 |
電話をかける(携帯・PHS可)
042-497-5777
「ホームページを見た」とお伝え下さい。
お問い合わせ番号をお伝えください
RHS-990976695
FP相談キャッシュフローの作成無料でできます