| 価格 | 1,450万円値下がり ![]() |
||||
|---|---|---|---|---|---|
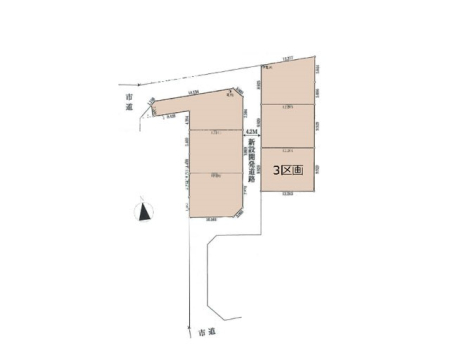
| 所在地 | 東京都武蔵村山市中藤4丁目
この地域周辺の物件を見る |
土地面積 | 120.48m² (36.45坪) | 坪単価 | 39.79万円 /坪 |
| 交通 |
西武拝島線 東大和市 中藤 バス17分 停歩3分
多摩都市モノレール 上北台 徒歩35分 |
建ぺい率 | 40 % | 容積率 | 80 % |
電話をかける(携帯・PHS可)
042-497-5777
「ホームページを見た」とお伝え下さい。
お問い合わせ番号をお伝えください
RHS-990954459
| 特徴 |
|
|---|---|
| セールスコメント | 第1種高度地区 建築条件:付き |
| 建築条件 | あり | 土地権利 | 所有権 |
|---|---|---|---|
| 現況/引渡し | 更地/相談 | 接道状況 | 接道: 西 公道 道路幅: 5m |
| 私道負担面積 | - | セットバック | なし |
| 地勢 | 地目 | 宅地 | |
| 用途地域 | 第一種低層住居専用地域 | 都市計画 | 市街化区域 |
| 法令上の制限 | - | 国土法届出 | 不要 |
| 取引態様 | 仲介 | ||
| 情報更新日 | 2026年02月06日 | 次回更新日 | 2026年02月20日 |
| 小学校区 | 武蔵村山市立第三小学校 (東京都武蔵村山市) この学区の他の物件を見る |
中学校区 | 第三中学校 (東京都武蔵村山市) この学区の他の物件を見る |
|---|
電話をかける(携帯・PHS可)
042-497-5777
「ホームページを見た」とお伝え下さい。
お問い合わせ番号をお伝えください
RHS-990954459
| 価格 | 万円 | ||
|---|---|---|---|
| 年利率 | % |
||
| ボーナス払い | 返済年数 | ||
| 頭金 | 直接入力する | 万円 | |

毎月のご返済額 |
ボーナス(×年2回) |
物件価格1,450万円 |
![]() |
![]() |
武蔵村山市中藤4丁目
1350万円〜1650万円 |
電話をかける(携帯・PHS可)
042-497-5777
「ホームページを見た」とお伝え下さい。
お問い合わせ番号をお伝えください
RHS-990954459
FP相談キャッシュフローの作成無料でできます