アイディスクエア川越新富町 埼玉県川越市新富町1丁目|3,590万円の中古マンション|分譲マンション情報|ME不動産西東京

年中無休 営業時間:9:00〜18:30 042-497-5777
不動産1分査定
TOPページ >
物件検索 >
中古マンション
>
川越市
>
西武新宿線
>
アイディスクエア川越新富町

中古マンション

アイディスクエア川越新富町NEW
お気に入り
価格 3,590万円 ローンシミュレーション
所在地 埼玉県川越市新富町1丁目
この地域周辺の物件を見る
専有面積 53.46u 築年月 2007年11月築
交通
西武新宿線 本川越 徒歩6分
東武東上線 川越市 徒歩9分
管理費等 10,480円 修繕積立金 11,200円
所在階/階数 5階/地上10階建 バルコニー面積 14.07m²
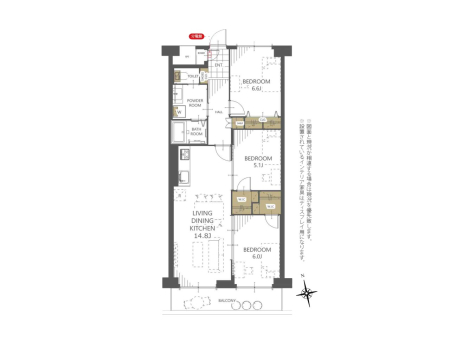
間取り 2LDK (洋室5.6/洋室5/LDK14.4)
ここがおすすめ

FP相談キャッシュフローの作成無料でできます


  •  間取り
  • 周辺環境 駅 480m 西武新宿線本川越駅
  • 周辺環境 小学校 340m 川越市立中央小学校
  • 周辺環境 中学校 860m 川越市立川越第一中学校
  • 周辺環境 幼稚園・保育園 200m 川越幼稚園
  • 周辺環境 病院 400m 本川越病院
  • 周辺環境 コンビニ 290m ファミリーマート 川越通町店
  • 周辺環境 スーパー 160m マルエツ連雀町店
  • 周辺環境 スーパー 900m ベルク 川越東田町店
  • 周辺環境 スーパー 2100m 生鮮市場TOP 川越店
お問い合わせ、資料請求、見学のお申し込みはこちらから

電話をかける(携帯・PHS可)
042-497-5777
「ホームページを見た」とお伝え下さい。

お問い合わせ番号をお伝えください
RHS-991013860

内見予約
お問合せ

セールスポイント

特徴
  • フローリング
  • システムキッチン
  • バス・トイレ別
  • 室内洗濯機置場
  • Wクローゼット
  • バルコニー
  • エレベーター
  • ペット対応
  • 新着物件
セールスコメント
 


物件概要

採光面 南西 取引態様 仲介
現況 空家 引渡し 即時
総戸数 27戸 構造 RC造
テラス面積 - 専用庭面積 -
駐車場 有:20,000円/月 駐輪場 -
建物権利 - 土地権利 所有権
用途地域 商業地域 - - 管理態様 管理形態:委託(巡回)
管理組合:-
管理会社:伏見管理サービス
情報更新日 2026年04月25日 次回更新日 2026年05月09日
※各種情報と差異がある場合は現況優先となります

学区情報

小学校区
()
中学校区
()
※物件情報の学区情報について
当サイト物件情報に記載されております通学区域(学区)情報は、国土数値情報ダウンロードサービスが提供する小学校区データ【2016年度】及び中学校区データ【2016年度】を元に加工したものですので、記載情報が現在の学区域と異なる場合がございます。
国土数値情報ダウンロードサービスのWEBサイト上で記述通り、データは必ずしも正確とは言えません。また、通学区域(学区)は毎年見直しの対象となりますので、そちらを踏まえ学区情報は参考としてご活用下さい。
お問い合わせ、資料請求、見学のお申し込みはこちらから

電話をかける(携帯・PHS可)
042-497-5777
「ホームページを見た」とお伝え下さい。

お問い合わせ番号をお伝えください
RHS-991013860

内見予約
お問合せ

この物件でローンシミュレーションする

価格 万円
年利率
ボーナス払い 返済年数
頭金 直接入力する 万円

毎月のご返済額

ボーナス(×年2回)

物件価格

3,590万円
※返済金額はあくまでも目安です。

電話でお問い合わせ
ME不動産西東京

電話をかける

042-497-5777

※「ホームページを見た」とお伝えください。
お問い合わせ番号をお伝えください
RHS-991013860

お問い合わせ

お問い合わせ内容
お問合せ内容必須
【備考欄】
詳細な見学ご希望時間、ご質問、ご希望条件などがございましたらお聞かせ下さい。
(2000文字以内)
お客様情報
お名前必須
連絡先必須 メールアドレス

※ご記入いただいたメールアドレス宛てに、お問合せ内容の確認メールをお送りいたします。
※Yahoo!メールなどのフリーメールをご利用の場合、迷惑メールフォルダに入る場合があります。
 迷惑メールのフォルダ・設定等をご確認下さい。
電話番号
FAX(任意)
※ご入力いただいたお客さまの個人情報は、「個人情報の取扱いについて」に基づき適正に取り扱います。必ずお読みになり、同意の上お問い合わせください。

お気軽にお問い合わせください

042-497-5777
物件番号 RHS-991013860
※「ホームページを見た」
とお伝え下さい。